Einsatztrainingszentrum Koblach

  • Architektur
  • Öffentlich
  • 2017–2021
  • Koblach
querformat ETZ Koblach AUSSEN 220718 002 A Lamprecht Kopie ANZEIGE optimiert

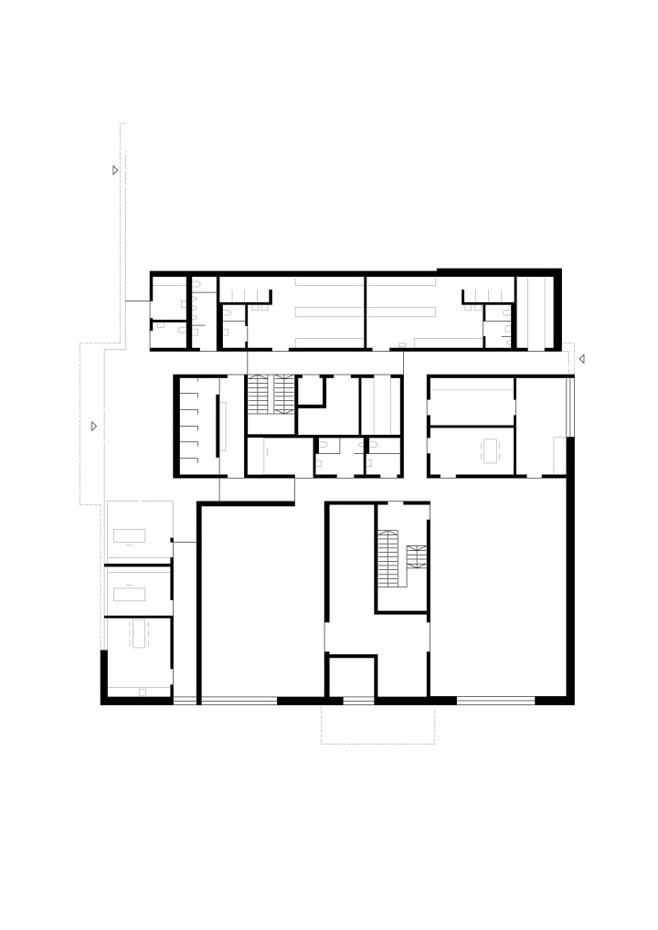
Die Erweiterung der Schießanlage durch das Trainingszentrum soll als selbstbewusster Kopfbau formuliert werden, der als starke Geste den bewaldeten Felsausläufern entgegengesetzt wird. Der Baukörper markiert somit den Ausbildungsort und verleiht dem Inhalt des Gebäudes eine entsprechende Wirkung nach außen.

Ein großer Teil Räume benötigen nicht zwingend Tageslicht oder einen direkten Bezug nach außen. Daraus resultiert ein durchaus introvertiertes Gebäude mit wenigen Naturbezügen. Die unterschiedlichen Raumhöhen werden geschickt miteinander verwoben, durch die Rücksprünge und Ausschnitte bieten sich zurückversetzte Belichtungsbereiche, ohne Einsicht von außen.

Konstruktion u. Materialkonzept unterstreichen den introvertierten Charakter des Einsatztrainingszentrums. Die Fassade ist außen in robustem Sichtbeton geplant. Der zentrale Erschließungskern und tragende Innenwände werden ebenfalls in Sichtbeton ausgeführt.

Bauherr
BIG mbH
Fotos
Angela Lamprecht
Modellbau
Martin Stocker
Visualisierung
Hof 437
Örtliche Bauleitung
Tschabrun Ingenieur GmbH
Statik
zte Leitner ZT GmbH
Haustechnikplanung
Ingenieurbüro Walter Pflügl
Elektroplanung
ekplan
Leitsystem/Signaletik
Elisabeth Kopecny
Bauphysik
Spektrum Bauphysik & Bauökologie GmbH
Brandschutzplanung
K&M Brandschutztechnik GmbH
Geotechnik
3P Geotechnik ZT GmbH
Infrastrukturplanung
Wasserplan ZT GmbH
Auftrag
1.Preis beim Verhandlungsverfahren - Generalplanerbeauftragung
querformat ETZ Koblach AUSSEN 220718 005 A Lamprecht Kopie optimiert
querformat ETZ Koblach AUSSEN 220718 009 A Lamprecht Kopie
querformat ETZ Koblach AUSSEN 220718 011 A Lamprecht Kopie
querformat ETZ Koblach AUSSEN 220718 014 A Lamprecht Kopie
querformat ETZ Koblach INNEN 220722 002 A Lamprecht Kopie
querformat ETZ Koblach INNEN 41 A Lamprecht Kopie optimiert
PR EG 1
PR 1OG 1
PR 2OG 1
PR SN 1

Ähnliche Projekte