Feuerwehrhaus Reuthe

  • Architektur
  • Öffentlich
  • 2010–2011
  • Reuthe
nam 0266 004 6x12 kopie 1300px

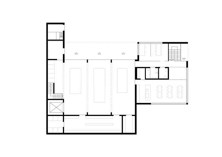
Vergeblich wurde nach einem neuen, passenden Standort für das neue Feuerwehrhaus gesucht. Schließlich entschied man sich für einen Neubau am ursprünglichen Standort. Eine entsprechende Nachnutzung oder Adaptierung des Bestandes hatte sich als nicht zielführend erwiesen. Das Gebäude ist grundsätzlich erdgeschossig mit einer Vollunterkellerung konzipiert. Die Fahrzeughalle überragt den Einsatz- und Aufenthaltsbereich sowie den Umkleidetrakt um die erforderliche Tragwerkshöhe, insgesamt 1,50m und ist gegenüber Schlauchturm und dem Aufenthaltstrakt um 3,60m zurückversetzt. Durch das mächtig auskragende Vordach wird in der Baukörpergeometrie dieser Rücksprung in der Fassade wieder räumlich geschlossen. Unmittelbar vor den Garagentoren entsteht so ein komfortabler, großzügig überdachter Vorplatz.

Ganz vorne am Eck steht der 10,0m hohe Schlauchturm, der durch seine Orientierung zum Vorplatz optimal zu Übungszwecken (Bergung, Anleitern, …) genutzt werden kann und gleichzeitig das Feuerwehrhaus weithin auch visuell deutlich als solches erkenntlich macht.

Kooperation
Johannes Kaufmann Architektur
Kooperation
DI Bernd Frick ZT GmbH
Bauherr
Gemeinde Reuthe
Örtliche Bauleitung
Querformat ZT GmbH
Fotos außen
Radon Fotography - Norman Radon
Fotos innen
Adolf Bereuter
Statik
zte Leitner ZT GmbH
HSL - Planung
Koller & Partner GmbH
Elektroplanung
Ingenieurbüro Willi Meusburger
Bauphysik
DI Günter Meusburger GmbH
Auszeichnungen
Holzbaupreis 2013 - Auszeichnung
Publikationen
2012 VN Beilage "Leben und Wohnen"
nam 0266 006 kopie 1300px
RGB 09 JK kopie 1300px
nam 0266 014 kopie 1300px
RGB 05 JK kopie 1300px
RGB 04 JK kopie 1300px
PR EG
PR UG
PR SN

Ähnliche Projekte