Schule Schendlingen

  • Architektur
  • Lernen
  • 2014–2017
  • Bregenz
RGB MBS 0001 TAL kopie anzeige

„Mit Abstand das beste Schulgebäude, das ich kenne“ behauptet Mittelschuldirektor Tobias Albrecht.

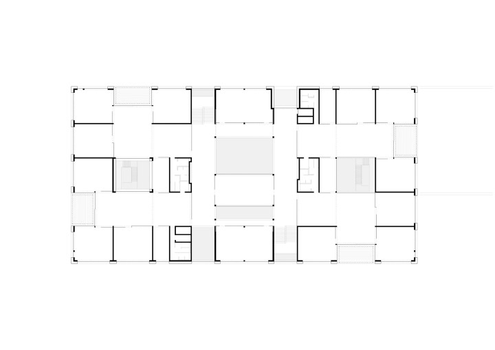
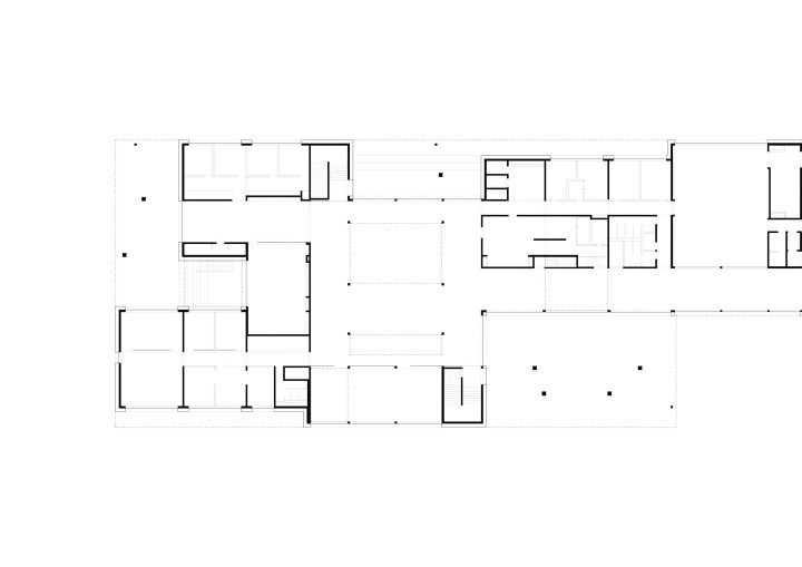
Die Schule Schendlingen versammelt als erste Clusterschule in Vorarlberg 6-14-jährige Schüler unter einem Dach. Ein extrem dichtes Raumprogramm für 600 Schüler, das in einer multifunktional nutzbaren Raumstruktur im Sinne eines „open buildings“ umgesetzt wurde. Das Erdgeschoss ist den allgemeinen Nutzungen (Aula, Bücherei, Verwaltung, Musikschule, Mittagstisch …) vorbehalten. Die eigentlichen Unterrichtsräume sind in den beiden grundsätzlich identischen Obergeschossen untergebracht. Der einzelne Cluster als räumliche Einheit vermittelt den Kindern dort einen familiären Rahmen. Großzügige Lichthöfe und Lufträume sorgen trotz der enormen Gebäudetiefe für angenehme Belichtungsverhältnisse und vielfältige vertikale und horizontale Sichtverbindungen. Eine extrem effiziente Erschließung - es gibt im Prinzip keine klassischen Schulgänge. Das Materialkonzept ist auf Sichtbeton, Glas, Eschenholz und Filzelemente reduziert und bildet so einen angenehm zurückhaltenden Rahmen für einen Schulbetrieb, der den Anforderungen der neuen pädagogischen Konzepte bestmöglich gerecht wird, die Schüler beim Lernen fördert und die Lehrer zum Unterrichten herausfordert.

Kooperation
Architekt Matthias Bär ZT GmbH (Entwurf)
Kooperation
Architekt Bernd Riegger ZT GmbH
Bauherr
Landeshauptstadt Bregenz
Fotos
Adolf Bereuter
Örtliche Bauleitung
Landeshauptstadt Bregenz
Statik
DI Manfred Plankel
HSL-Planung
Ingenieurbüro Walter Pflügl
Elektroplanung
Ingenieurbüro Peter Hämmerle
Lichtplanung
Manfred Remm
Leitsystem/Signaletik
Atelier Andrea Gassner
Bauphysik
DI Günter Meusburger GmbH
Brandschutzplanung
IBS Institut für Brandschutztechnik und Sicherheitsforschung
Gastroplanung
Christian Niedertscheider, Systemplan
Kunst am Bau
Marbod Fritsch
Auftrag
1.Preis EU-weit offener Wettbewerb
Auszeichnungen
2019 BIGSEE Architecture Award
2019 nominiert für Mies-van-der-Rohe Award
2019 shortlisted Bucharest Triennale
2019 ZV-Bauherrenpreis
2020 Hypo-Bauherrenpreis
Publikationen
2017 Architektur vor Ort
2017 VN-Beilage „Leben und Wohnen“
2018 AIT
2019 Arhitext Romania
2021 zement + beton
RGB MBS 0002 TAL kopie
RGB MBS 0003 TAL kopie
RGB MBS 2800 TAL kopie
RGB MBS 2809 TAL kopie
RGB MBS 8353 TAL kopie
RGB MBS 8640 TAL kopie
RGB MBS 9068 TAL kopie
RGB MBS 4221 TAL kopie sekundaer
RGB MBS 18329 TAL kopie
01 eg kopie
02 og kopie
03 qs kopie

Ähnliche Projekte