Sicherheitszentrum Bezau

  • Architektur
  • Öffentlich
  • 2012–2014
  • Bezau
nam 0318 0000 04 kopie 1300px

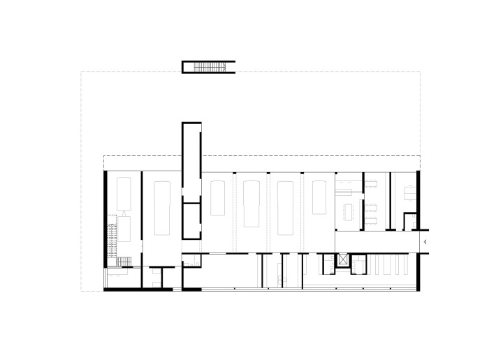
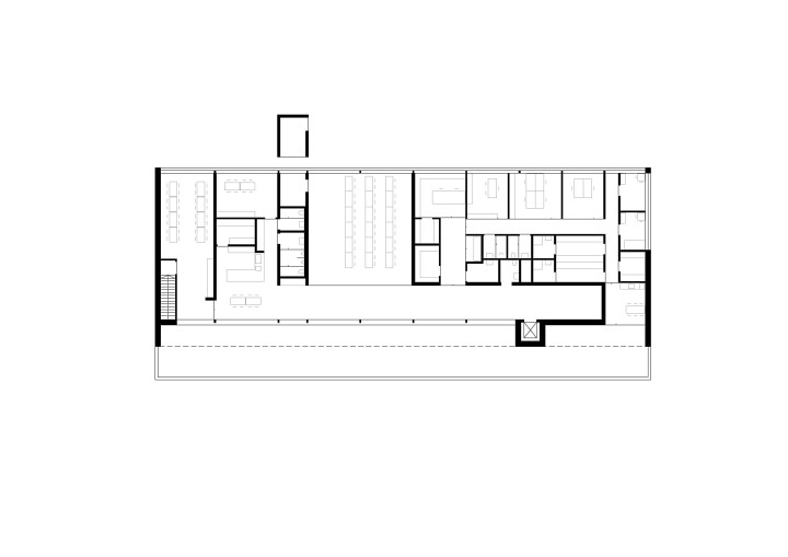
Im Sicherheitszentrum Bezau sollten die verschiedensten, auch überregional aktiven Blaulichtorganisationen unter einem Dach zusammengefasst werden. Neben der freiwilligen Feuerwehr Bezau und der Polizei sind zusätzlich noch Zweigstellen der Bergrettung sowie der Wasserrettung hier zusammengezogen. Die Synergien dieser Bündelung der Kräfte liegen auf der Hand und haben sich bereits des öfteren bewährt.  Im Erdgeschoss sind nach Osten, zum Vorplatz und zum Dorfkern orientiert die große Fahrzeughalle mit ebenerdigen Einsatzzentralen, Aufenthaltsräumen und Umkleiden. Im Obergeschoss ist neben Polizei und Wasserrettung ein großer Multifunktionsraum mit großzügigem Foyer und nach Westen orientierter Dachterrasse untergebracht. Diese Räumlichkeiten sind auch extern für Seminare, Vorträge, usw… nutzbar und haben sich in jüngster Vergangenheit auch hervorragend als Corona-Test- und -Impfzentrum bewährt. Beim Entwurf wurde großes Augenmerk auf eine saubere, kreuzungsfreie Erschließung, kurze Wege sowie gute Übersichtlichkeit und leichte Orientierung im Sinne der Einsatzkräfte gelegt. Bei diesem konstruktiven Holzbau wurde zum größten Teil Fichte und Weißtanne aus gemeindeeigenem Forst eingesetzt und von lokalen Firmen in der weithin bekannten Wälder-Handwerksqualität umgesetzt.

Kooperation
Hermann Kaufmann + Partner ZT GmbH
Kooperation
DI Ralph Broger
Bauherr
Marktgemeinde Bezau
Fotos
Radon Fotography - Norman Radon
Örtliche Bauleitung
DI Ralph Broger
Statik
Merz Kley Partner
Haustechnikplanung
Koller & Partner GmbH
Elektroplanung
Ingenieurbüro Willi Meusburger
Bauphysik
DI Günter Meusburger GmbH
Brandschutzplanung
K&M Brandschutztechnik GmbH
Auszeichnungen
Holzbaupreis 2015 - Auszeichnung
Publikationen
2014 VN Beilage „Leben und Wohnen“
Handbuch und Planungshilfe Feuerwehrbauten (DOM publishers)
nam 0318 0000 21 kopie 1300px
nam 0318 0000 23 kopie 1300px
nam 0318 0000 06 kopie 1300px
nam 0318 0000 01 kopie 1300px
nam 0318 0000 02 kopie 1300px
nam 0318 0000 12 kopie 1300px
nam 0318 0000 22 kopie 1300px
nam 0318 0000 14 kopie 1300px
PR UG
PR EG
PR OG
PR SN 1
PR SN 2
PR SN 3

Ähnliche Projekte