- Architektur
- Wettbewerbe
- 2020
- Wiener Neustadt
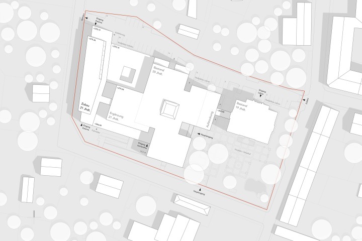
Einerseits soll die Kraft und Klarheit des Bestandes gewürdigt und weitergeführt werden und andererseits mit einem Neubau ein zeitgenössischer Gegenpart zur historischen Substanz der Burkardvilla geschaffen werden.
Um eine qualitätsvolle, zentrale Erschließung sind windradartig drei Bauteile angeordnet und jeweils in unterschiedliche Himmelsrichtungen orientiert. Dieser Systematik folgend, werden die vermeintlich fehlende Teile ergänzt bzw. hinzugefügt und somit eine logische Erweiterung mit minimalen Eingriffen in die Struktur des Bestandes vorgeschlagen. Westlich des nun vervollständigten Schulhauses wird ein Neubau als Solitär und räumlicher Gegenpart zur historischen Burkhardvilla konzipiert und durch einen eingeschossigen Verbindungsbau an die Schule angebunden. Die prägnanten Vor- und Rücksprünge des Bestands werden fortgeführt.
Sämtliche Stammklassen finden im bestehenden Schulhaus inkl. der Erweiterung Platz. Westlich des Klassentraktes, durch eine klar weitergeführte Erschließung optimal an den Klassentrakt angebunden, wird ein „Laborgebäude“ für die Sonderunterrichtsräume vorgeschlagen. Die Tagesbetreuung mit großzügigen Aufenthaltsbereichen fungiert im Erdgeschoß als zentrales Bindeglied.
- Kooperation
-    Reim Architekt
- Bauherr
-    BIG mbH
- Modellbau
-    Martin Stocker
- Visualisierung
-    Janusch - the visual collective
 
     
     
     
     
     
     
      
     