WB Landesberufsschulen 1-3 Bregenz (2. Preis)

  • Architektur
  • Wettbewerbe
  • 2022
  • Bregenz
anzeigebild

Das vorliegende Projekt versucht, die vorhandenen Qualitäten des Schulareals zu erhalten und noch stärker zu fokussieren. Die riegelartigen Bauteile A, C und F parallel zur Bahnlinie bleiben grundsätzlich erhalten. Der Verbindungsbau B wird an derselben Stelle durch einen Neubau ersetzt, der den neuen Anforderungen entspricht und zukünftig auch hohe innenräumliche Qualitäten aufweist. Bauteil D (Kuthan-Bau) wird an ähnlicher Stelle durch einen turmartigen Neubau ersetzt. Dieser 8-geschossige Baukörper (E+7) ergänzt das sonst aus horizontalen Riegeln bestehende Ensemble als vertikale, weithin sichtbare Landmark im Quartier.

Auszug Juryprotokoll:

…“Die überaus schwierige Aufgabenstellung, die durch die Einhaltung der Einzeletappen noch zusätzliche Komplexität erlangt, wird durch eine schlüssige und einfache Grundidee ebenfalls überzeugend gelöst.“…

…“ Der Turmbau ergänzt an richtiger Stelle die ansonsten durch Horizontalität geprägte Anlage mit einem städtebaulichen Akzent, welcher in der Lage ist, mit den Hochpunkten in der weiteren Umgebung zu kommunizieren und die benachbarten Bestandsbauten räumlich stimmig ins System mit einzubeziehen ohne mit ihnen in Konkurrenz zu treten.“…

…“ In der 3. Bauetappe wird ein Trägerrost zwischen die drei Schulbaukörper gespannt, welcher somit folgerichtig als zentrales Element die drei Schultrakte A, C und D verknüpft.“…

Bauherr
Land Vorarlberg
Modellbau
Martin Stocker
Auszeichnungen
2. Preis
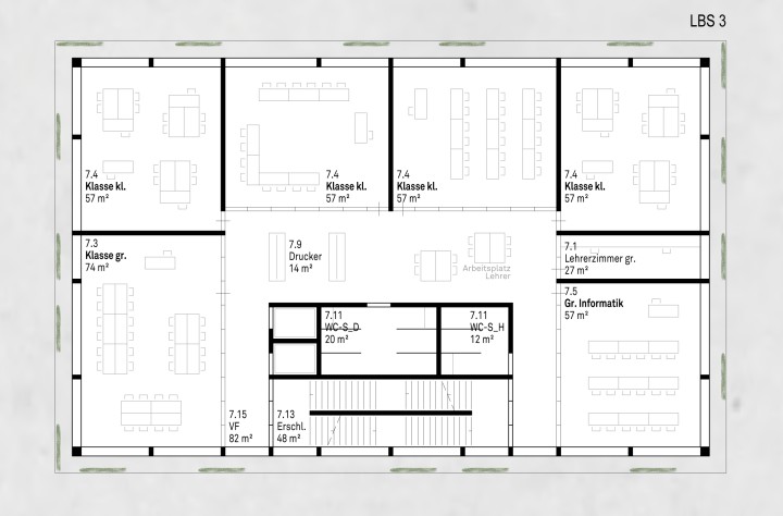
plan 01 etappierung
plan 02 grundriss eg
plan 03 grundriss rg
plan 04 schnitt quer
plan 05 ansicht nord
plan 06 ansicht ost
plan 07 fassadenschnitt

Ähnliche Projekte