Landwirtschaftsschulen Vorarlberg

  • Architektur
  • Lernen
  • 2016–2020
  • Hohenems
RN 0614 036 kopie 1300px

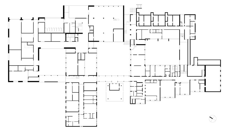
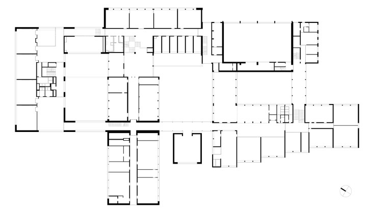
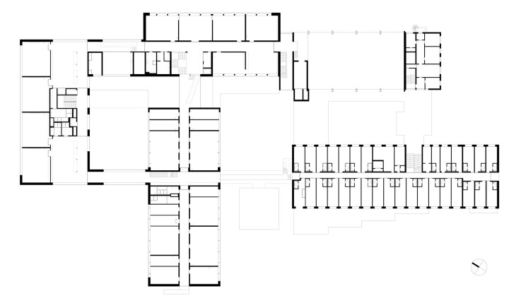
Die Landwirtschaftsschulen Vorarlberg wurden 1974 in Hohenems gebaut und bereits 1988 und 2006 durch zwei zusätzliche Trakte erweitert. Auf Grund der großen Vielzahl und Bandbreite der angebotenen Schulzweige und auch Erwachsenenbildung wurde 2018-2019 ein weiterer Klassentrakt errichtet. Dieser neue Trakt dockt an beiden bereits bestehenden Klassentrakten an, wobei die beiden Erschließungsachsen als Umgang durch den Neubau weiter fortgeführt werden. Gleichzeitig wird als Ergänzung zu den bereits vorhandenen Innenhöfen ein weiterer Innenhof gebildet. Nach der Generalsanierung von Trakt C treten dann alle Klassentrakte sowohl innen als auch außen mit einem einheitlichen Farb- und Materialkonzept in Erscheinung. Dabei wurde großer Wert auf Energie- und Ressourcenschonendes Bauen und den Einsatz von möglichst nachhaltigen Baumaterialen gelegt. Die Obergeschosse sind zur Gänze in Holz konstruiert und mit Holz verkleidet. Eine Besonderheit stellt sicher die eigens entwickelte, akustisch wirksame Massivholzdecke dar, die in Kombination mit den Massivholzmöbeln aus heimischer Braunkernesche (unbehandelt) für eine hohe Aufenthaltsqualität sorgen und so ein angenehmes, inspirierendes Umfeld für Schüler und Lehrer schaffen.

Kooperation
Hermann Kaufmann + Partner ZT GmbH
Bauherr
Landesvermögen-Verwaltungsges.mbH
Fotos
Radon Fotography - Norman Radon
Örtliche Bauleitung
Albrecht Baumanagement GmbH
Statik
gbd ZT GmbH
HSL-Planung
Koller & Partner GmbH
Elektroplanung
ekplan
Leitsystem/Signaletik
Atelier Andrea Gassner
Bauphysik
Spektrum Bauphysik & Bauökologie GmbH
Brandschutzplanung
IBS Institut für Brandschutztechnik und Sicherheitsforschung
Kunst am Bau
Marbod Fritsch
Auftrag
1.Preis EU-weit offenes Verhandlungsverfahren
Publikationen
2021 VN Beilage „Leben und Wohnen“
RN 0614 031 kopie 1300px
RN 0668 005 1 kopie 1300px
RN 0614 006 kopie 1300px
RN 0614 018 kopie 1300px
RN 0614 009 kopie 1300px
RN 0614 010 kopie 1300px
RN 0614 011 kopie 1300px
RN 0668 015 kopie 1300px
RN 0614 040 kopie 1300px
01 lage kopie
02 eg kopie
03 og1 kopie
04 og2 kopie
05 qs kopie
06 ls kopie

Ähnliche Projekte